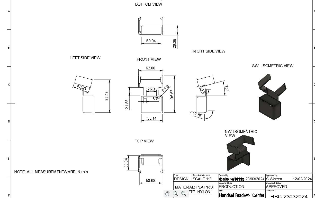
TECHNICAL DRAWING TO 3D MODELS
From 2D Drawings to 3D Printed Parts – Faster, Smarter, and On-Demand
⚙️ Still Sitting on Old Drawings and Worn-Out Parts? Let's Fix That.
If you’ve ever been stuck with a broken part, a 20-year-old blueprint, and no idea where to get a replacement — you’re not alone.
We’ve lived that frustration too. That’s why we to turn your 2D technical drawings into 3D printed, ready-to-use parts — fast, affordable, and hassle-free.
🛠️ What We Do (in Plain English)
We take your existing:
- 📄 2D technical drawings (PDFs, scans, blueprints, hand sketches)
- 🔩 Broken or worn components (physical parts for scanning)
And we turn them into:
- ✅ Precision 3D CAD models (ready for prototyping or production)
- ✅ Real, usable parts — 3D printed using the right materials for the job
All backed by 30+ years of real-world mechanical experience and modern manufacturing methods that actually get results.
🔄 From Drawing to Working Part — Here’s the Flow
Step 1: You send us a drawing or a physical part
Step 2: Mitchell & Son model it in 3D CAD
Step 3: We check it for printability
Step 4: We 3D print a test or final part
Step 5: You fit it, use it, and get back to work
We even store the file so you can reprint the part later — no need to stock shelves full of spares.
🧰 Real Parts. Real Tough. Real Fast.
We’re not printing toys. We're printing:
- Gearbox housings
- Pump connectors
- Tooling jigs
- Custom brackets
- Obsolete spare parts
- Alignment fixtures
- Low-volume production components
And we use serious gear — from high-performance nylon and carbon-filled composites, right through to full metal 3D printing (DMLS) when the job calls for it.
💡 Why It Works
- Fast Turnaround – Most jobs done in under a week
- No Tooling Costs – Perfect for short runs or one-offs
- No Inventory – Print spares on-demand
- Optimised Designs – Lighter, stronger, better
- Lower Downtime – Fix instead of wait
👨🏭 Who’s This For?
If you're in:
- Heavy industry
- Marine & offshore
- Transport & rail
- Manufacturing
- Maintenance & repair
- Heritage restoration
- Or just stuck with a broken part...
Then this is exactly the kind of service you’ve been wishing someone offered.
🧾 Example Use Case
Problem: A cracked pump housing. OEM’s gone. Part’s discontinued. Drawing’s on paper from 1984.
Solution:
- We scan the broken part
- Mitchell & Son rebuild it in CAD
- We print a reinforced prototype in carbon-filled nylon
- The client test-fits and signs off
- We produce 3 final parts
- Pump’s back online in 6 days
No tooling. No overseas lead times. No drama.
TECHNICAL DRAWING REQUEST
Changing from physical inventory to electronic inventory
I see the basic significance of changing 2D technical drawings into electronic 3D models today.
This interaction is fundamental in reverse engineering. Conventional 2D drawings, while still significant, frequently come up short on the profundity and detail required for contemporary assembling and configuration processes.
Changing these drawings into 3D models permits us to catch all aspects and complexities of a part, working with a more exact and extensive comprehension of its design. This guides in exact replication and upgrades the capacity to recognize likely enhancements and advancements in the plan.
Also, the shift to 3D modeling further develops joint effort and correspondence inside designing groups and across various divisions. At the point when we work with 3D models, everybody in question can envision the item more obviously, diminishing false impressions and blunders.
This progress also aligns with headways in innovation, such as CAD (computer-aided design) and additive manufacturing, which depend on 3D models. By taking on electronic 3D models, we guarantee that our plans are viable with present-day workflows, eventually prompting more proficient creation work processes and better-finished products.
The capacity to emphasize and test plans in a virtual climate before actual prototyping further highlights the need for this development from 2D to 3D in the designing domain.





